












Programme :
- Ecole maternelle (6 classes)
- Ecole élémentaire (9 classes)
- Espaces communs
- Centre médico-social
- Espace inspection et circonscription
- Ecole maternelle (6 classes)
- Ecole élémentaire (9 classes)
- Espaces communs
- Centre médico-social
- Espace inspection et circonscription
L’Ecole Samuel Paty à Béziers est centrée autour d’un paradigme fort entre massivité et porosité. Son positionnement urbain se base sur la mise en avant d’un volume épuré et longitudinal qui vient s’adapter à la topographie du site d’implantation.
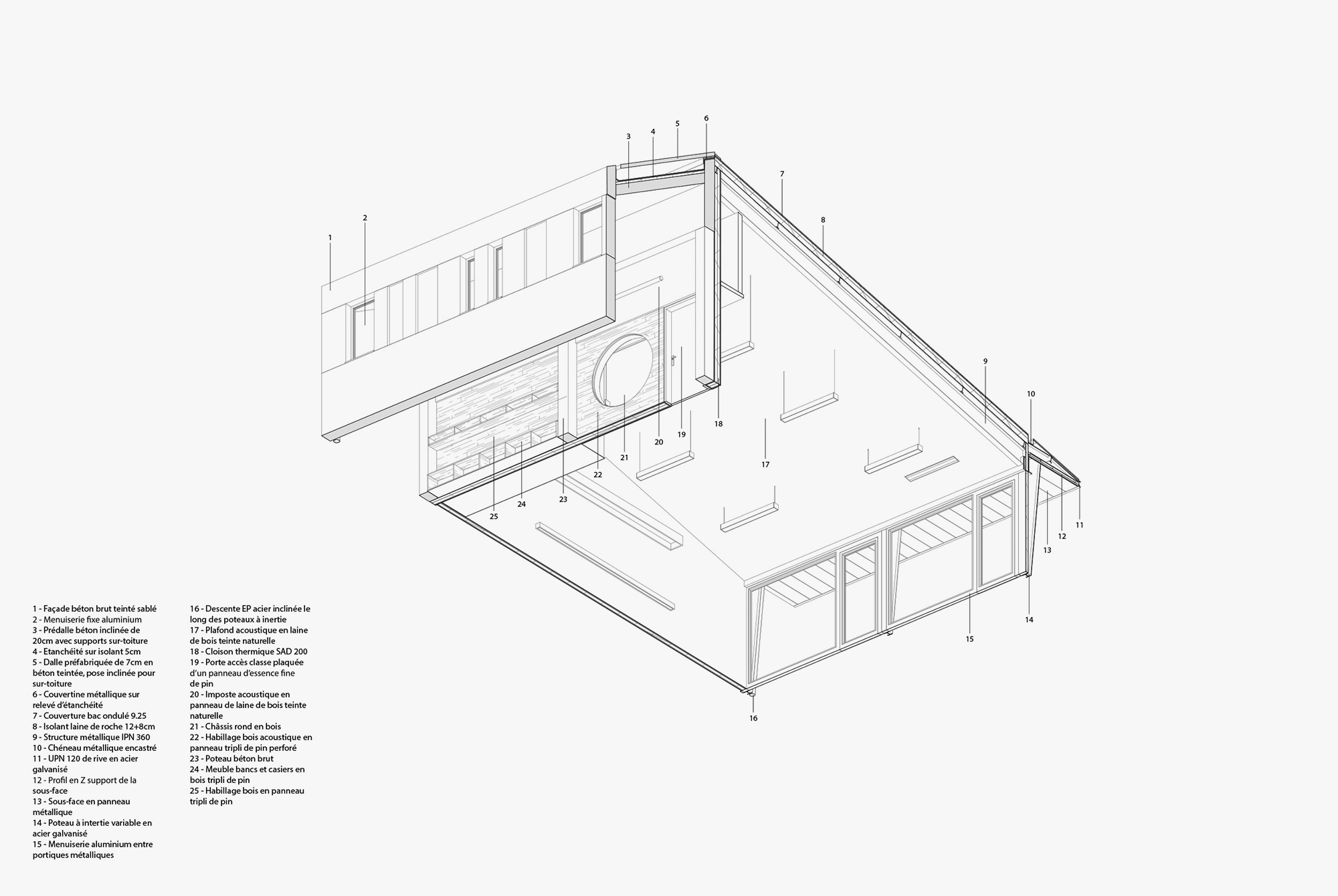
En plein cœur du quartier de la Devèze, l’Ecole Primaire se développe uniquement en Rez-de-Chaussée pour offrir une échelle de bâti à hauteur d’Homme. La toiture est donc une véritable façade à part entière dans le sens où elle est autant visible que les élévations. La matérialité en béton sablé permet alors d’unifier ces différents plans dans un ensemble où la composition se fond avec sa volumétrie.
En plein cœur du quartier de la Devèze, l’Ecole Primaire se développe uniquement en Rez-de-Chaussée pour offrir une échelle de bâti à hauteur d’Homme. La toiture est donc une véritable façade à part entière dans le sens où elle est autant visible que les élévations. La matérialité en béton sablé permet alors d’unifier ces différents plans dans un ensemble où la composition se fond avec sa volumétrie.








